We provide detailed 3D designs and renders that allow you to see your space before construction begins. This process gives you a clear understanding of the overall layout, finishes, and functionality, ensuring your vision is fully realized.
By visualizing the project in advance, we can improve accuracy and identify any potential design challenges before any work starts, saving time, reducing costly changes, and creating a smoother build process.
In addition to supporting the projects we construct ourselves, we also offer 3D design and rendering as a standalone service. If you are working with another construction team, we can provide professional designs and renders to assist both you and your builders. This ensures everyone involved has a clear, detailed visual reference and can address any potential issues before the project commences.
Below are just a few completed projects.
EN-SUITE BATHROOM ADDITION TO BEDROOM
This client engaged our team to create an en-suite bathroom within their existing bedroom, taking advantage of the generous available space. To ensure the proposed area was both practical and proportionate before construction began, we developed a detailed design and produced a 3D render.
This allowed us to optimize the layout, carefully position fixtures and fittings, and maximize functionality within the designated space. By visualizing the project in advance, we ensured the most efficient use of the area while delivering a well-balanced and thoughtfully designed en-suite.
OUTDOOR GYM SPACE
We were commissioned to develop a detailed design concept and 3D renders for a client’s outdoor gym space. While they had already appointed a construction team, they required a clear visual reference, accurate measurements, and a refined design aligned with their vision for the space.
Based on their initial brief, we produced a comprehensive 3D render to bring the concept to life. Once approved, we prepared complete project drawings and measurement files, providing their builder with the precise information needed to execute the project efficiently and accurately.
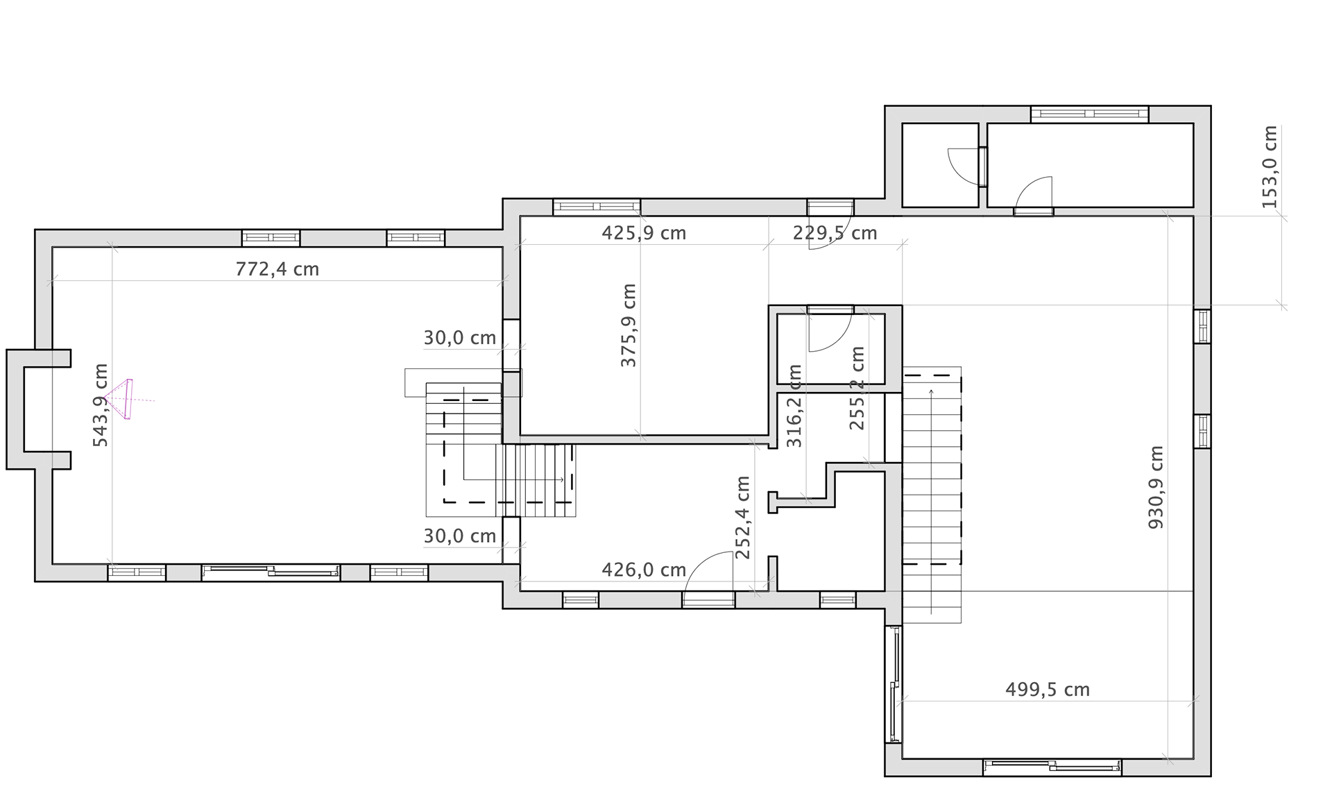
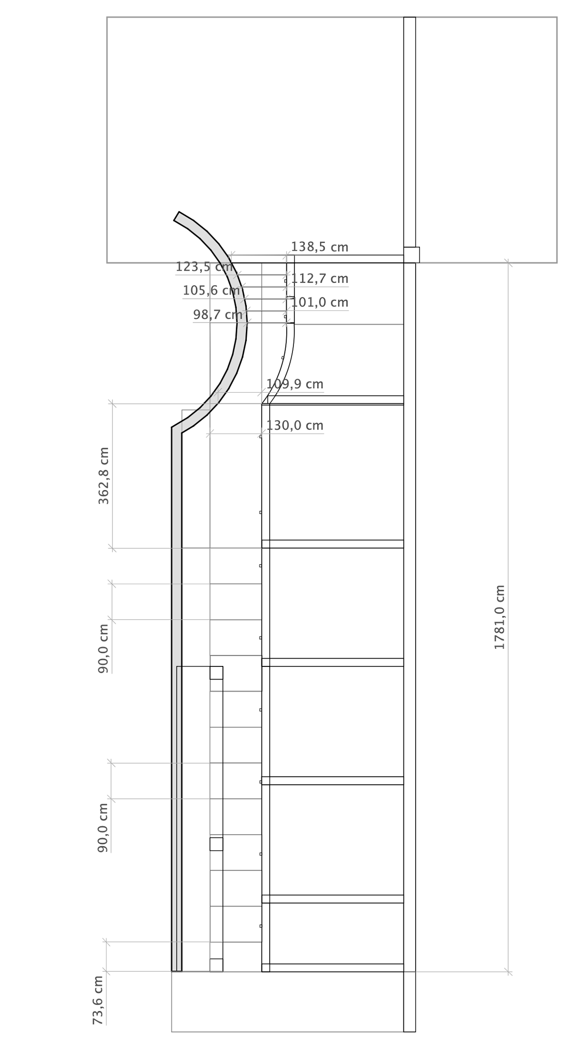
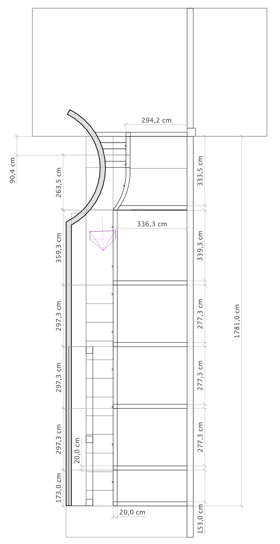
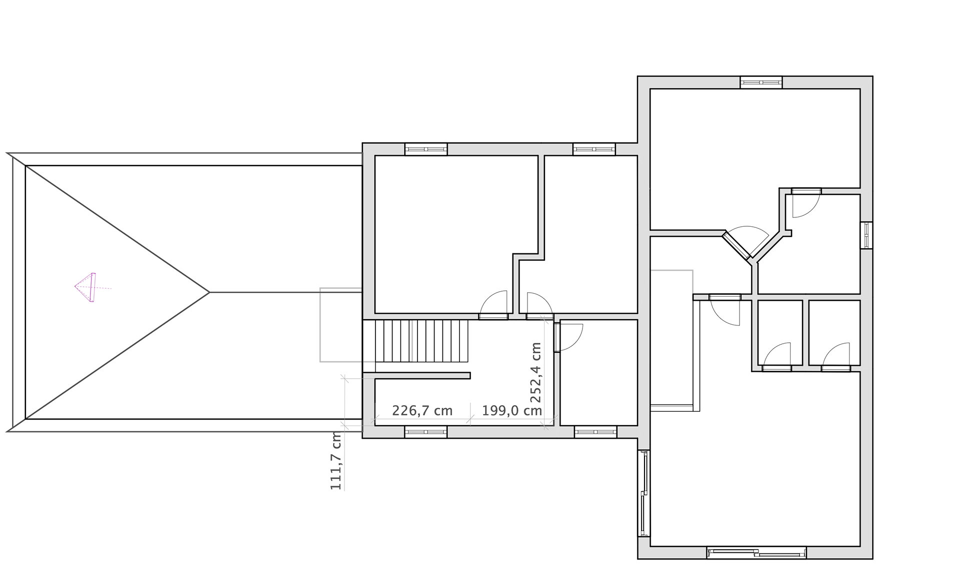
FULL HOME RENDER
This project involved a client who had recently purchased an older property, part of which had been previously renovated. The client wished to further modernize the home, bringing the original section in line with the updated areas while incorporating a range of new additions and improvements.
Their vision included transforming the existing kitchen into a functional office space, adding a driveway and carport, and creating a swimming pool with an outdoor terrace and pergola. Internally, they aimed to revitalize the living areas and introduce contemporary updates, including redesigning the fireplace to breathe new life into the space.
Using the original architectural drawings provided, we recreated the property with precise measurements before implementing the proposed alterations and additions. Incorporating the client’s preferred color schemes and design direction, we developed detailed concept renders that allowed them to clearly visualize the transformation and confidently refine the final design before any construction commenced.
GARDEN DESIGN
Having previously completed several successful projects for this client, we were delighted to be commissioned to redesign and rebuild their garden. The client had a clear and specific vision for the space, and our role was to bring that concept to life with precision and clarity.
We began by carefully taking detailed site measurements by hand and recreating the garden digitally to ensure complete accuracy. From there, we developed a comprehensive 3D render of the proposed design. This process allowed us to collaborate closely with the client, refining and enhancing the layout, materials, and overall composition, including the addition of thoughtfully positioned lighting to showcase the space at night.
The final render provided a clear visual representation of the client’s vision, giving them the confidence to move forward with the project knowing exactly how the finished space would look and feel.
VISUAL CONCEPTS
We also offer a service designed to help clients bring their conceptual ideas to life before engaging an architectural team. If you have a vision for your future home but would like to see how it could look and function in reality, we can transform your ideas into a detailed visual concept.
Through accurate layouts and 3D renders, we provide a clear representation of your proposed design, allowing you to explore what works best in terms of space, flow, and overall aesthetic. This process enables you to refine your vision in advance, ensuring you approach an architect with a well-developed concept.
By establishing clarity early on, you can save valuable time during the architectural design phase and potentially reduce costs, as your ideas will already be carefully considered and visually defined before formal plans are created.
DRIVEWAY CONCEPT
GARDEN WITH POOL CONCEPT
SMALL GARDEN WITH POND CONCEPT
OUTDOOR ENTERTAINMENT CONCEPT
LARGE BATHROOM CONCEPT
KITCHEN CONCEPT
INDOOR BAR CONCEPT
MAIN BEDROOM CONCEPT
Back to Top